HOW MUCH WOULD YOU LIKE TO OFFER FOR THIS PROPERTY?
Additional details

$ 899,900
Est. payment /mo
Active
10685 DIXIE HWY Davisburg, MI 48350
8.3 Acres Lot
UPDATED:
Key Details
Property Type Vacant Land
Sub Type ImprovedLand
Listing Status Active
Purchase Type For Sale
MLS Listing ID 20250010063
Lot Size 8.300 Acres
Acres 8.3
Property Sub-Type ImprovedLand
Property Description
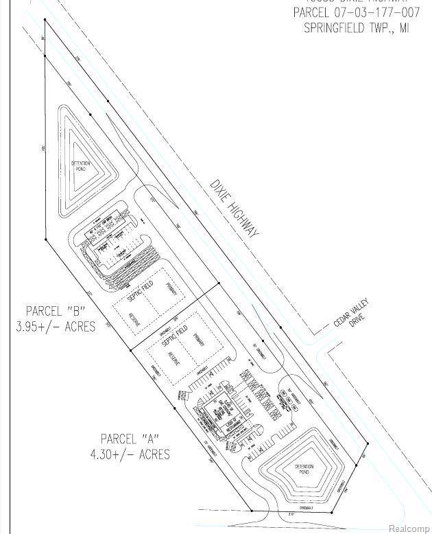
Site Plan for Gas Station, Drive Thru Restaurant, & Car Wash!!!! BUY PART or ALL of this 8.3 Acres!!! SELLER is willing to SPLIT!!! LAND CONTRACT IS AVAILABLE!!! No Set Terms! MAKE OFFER!!! This HARD CORNER Parcel is 8.30 Acres, ZONED C1 Commercial. Seller has already done substantial lot clearing and building removal!! HARD CORNER of E Holly Rd & DIXIE HWY, 1 MILE FROM I-75, 1,475' of Road Frontage on Dixie Hwy!!! FANTASTIC OPPORTUNITY for a New development. Possible Hotel, Car Wash, Gas Station, Restaurant!!! Currently, the property contains rentals (1,800 SF 3 Bedroom brick Ranch house, 900 SF 2 Bedroom Cottage, a 480 SF Studio Cottage, and a 7,000 SF building) that are unrented at this time.
Location
State MI
County Oakland
Area Area02071Springfieldtwp
Interior
Fireplace No
Exterior
View Y/N No
Building
Sewer Public Sewer
Water Public
New Construction No
Schools
High Schools Holly
School District Holly
Others
Senior Community false
Acceptable Financing Cash, Contract, Conventional
Listing Terms Cash, Contract, Conventional
Special Listing Condition ShortSaleNo, Standard
Virtual Tour https://www.propertypanorama.com/instaview/nocbor/20250006822

©2026 Realcomp II Ltd. Shareholders
Listed by Thomas Wilhelm of Wilhelm & Associates






